2 bedroom
1 bathroom
1 reception
2 bedroom
1 bathroom
1 reception
Modern Two-Bedroom Terrace in Halliwell – Available Now
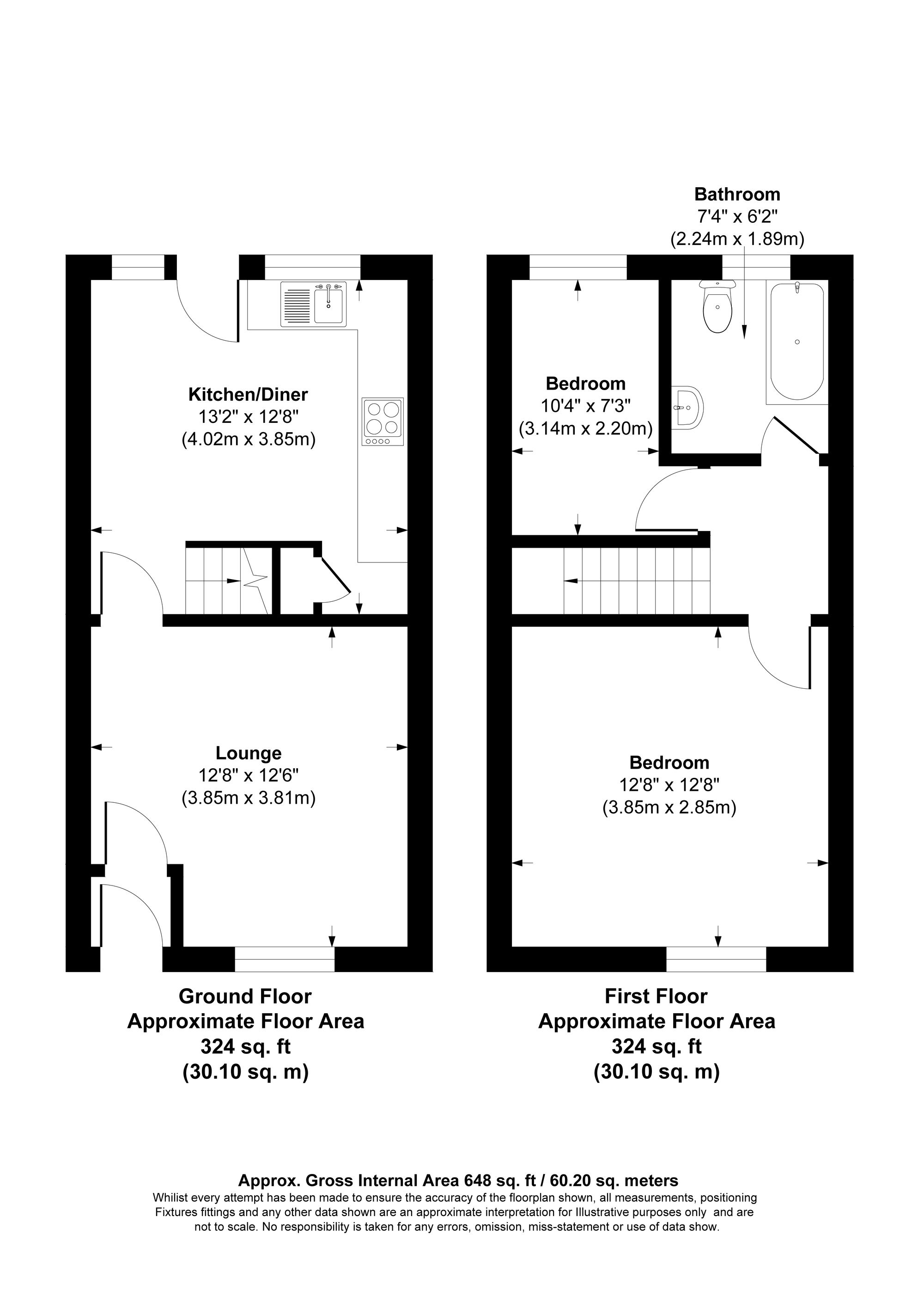
Located on Packer Street, just off Adrian Road, this well-presented mid-terrace home offers easy access to Bolton town centre, local shops, schools, and excellent transport links.
Step inside and you’re greeted by a handy entrance vestibule - perfect for coats and shoes - which leads into a spacious lounge. To the rear, a modern kitchen/breakfast room features stylish grey units, a central breakfast bar, and space for dining. Upstairs, there are two generous bedrooms, including a main bedroom with fitted wardrobes, along with a three-piece bathroom. Outside, the low-maintenance rear courtyard offers private outdoor space.
The property is offered unfurnished and is available immediately.
Deposit: £1,038
Council Tax Band: A
3 Packer Street -4
3 Packer Street -21
3 Packer Street -17
3 Packer Street -15
3 Packer Street -23
3 Packer Street -22
3 Packer Street -19
3 Packer Street -20
3 Packer Street -18
3 Packer Street -10
3 Packer Street -12
3 Packer Street -11
3 Packer Street -14
3 Packer Street -13
3 Packer Street -1
3 Packer Street -2
3 Packer Street -7
3 Packer Street -6
3 Packer Street -3


















